欧美设计
健康办公研究所
人才中心

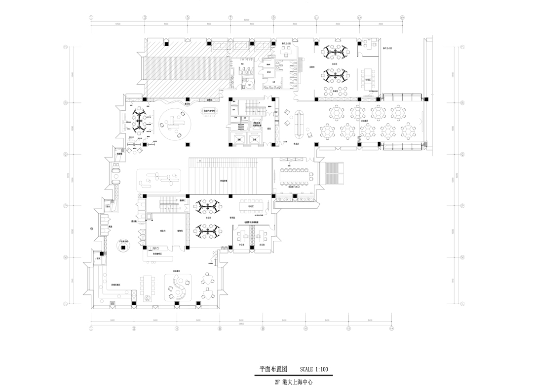
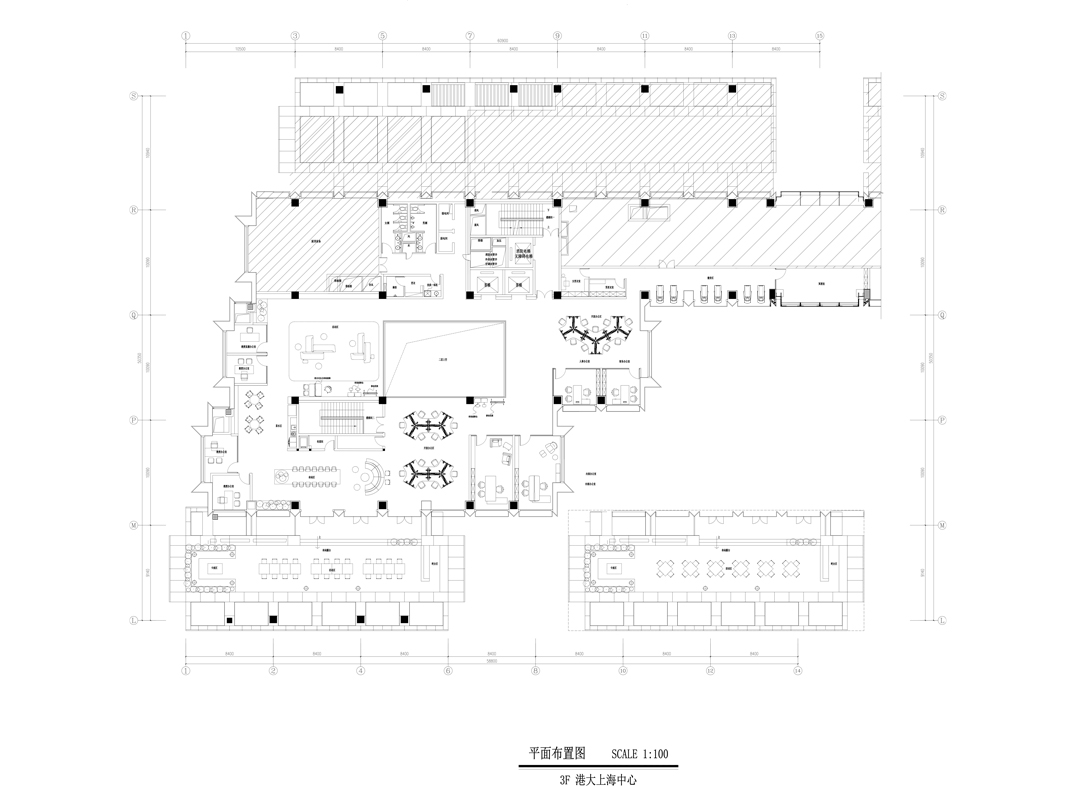
港大经管学院上海中心作为连接学术与产业的重要平台,其空间设计需兼顾教学研究、商业实践与社会连接等多重功能。圣奥办公家具以空间为媒介,通过灵活、智能、人性化的办公家具解决方案,展现了圣奥作为领先办公家具品牌在高端教育空间中的综合实力。
一、无界传承:构建灵感流动的学术共同体
中心的空间本质是一个动态的、支持多元工作模式的“灵感发生器”。开放式设计贯穿各个区域,赋予空间高度的适应性与生命力。



职员区域采用模块化办公桌椅组合,支持教授与研究人员在独立工作与团队协作间自由切换;


会议空间散布于公共区域,配备可移动办公桌椅与轻质隔断,促进跨学科、跨团队的即时交流;



公共区域通过圣奥模块化沙发与灵活隔断,实现从休憩放松到学术沙龙的场景无缝转换,成为思想自由生长的开放平台。




二、战略赋能:一院三平台的空间诠释
空间设计紧密呼应港大经管学院“一院三平台”的发展战略,以具象场景支撑教学研究、商业实践与社会连接的深度融合。
教学研究平台配备专业办公桌椅与集成视听系统,为案例教学与学术研讨提供高效支持;



商业实践平台整合模拟谈判室、路演厅及开放式协作区,提供从创意孵化到商业呈现的全流程空间支持。


社会连接平台以贯通两层的中庭楼梯为核心,构建举办高端论坛、校友聚会及公众活动的交流枢纽,持续拓展学术与产业网络。
三、智慧温度:科技与人文的细节共鸣
在科技赋能的同时,空间更注重人文关怀的细腻表达,于每一处细节中传递尊重与温度。
教育空间集成4K无线投屏与远程协作系统,打破地域限制,实现全球知识互联。


公共区域配置机器人咖啡机,轻松提供高品质饮品,提升休憩体验。

人体工学座椅、可移动电源以及智能静音舱等设计,则在开放协作中守护个体的专注与舒适,真正实现科技为人服务。




港大经管学院上海中心通过“无界学堂”的实践,不仅重新定义了现代学术空间的形态,也彰显了圣奥办公家具在复杂场景中的综合解决能力。这里不仅是传授知识的地方,更是一个激发创新、促进合作、连接未来的活力场域。